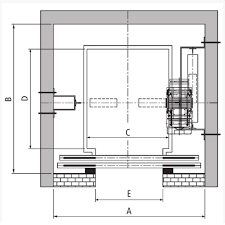
| Capacity | Lift Well | Cabin Inside | Entry | |||
|---|---|---|---|---|---|---|
| Person | Kgs | A | B | C | D | E |
| 5 | 340 | 1600 | 1500 | 920 | 1050 | 700 |
| 6 | 408 | 1650 | 1600 | 970 | 1130 | 700 |
| 8 | 544 | 1850 | 1700 | 1120 | 1280 | 800 |
| 10 | 680 | 2000 | 1850 | 1270 | 1380 | 800 |
| 13 | 884 | 2100 | 2600 | 1070 | 2100 | 800/900 |
| 15 | 1020 | 2100 | 3000 | 1070 | 2400 | 006/008 |
| 20 | 1360 | 2300 | 3000 | 1320 | 2400 | 001/006 |
| 26 | 1768 | 2450 | 3000 | 1620 | 2400 | 900/1000 |
In order to know the concept of environmental protection, energy saving, saving building area, improve the degree of freedom in design is the responsibility of the SAAVI ELEVATOR without machine room, fully reflects the green spirit of humanity, the elevator needs only one independent well space, without room, with the same load weight level than conventional elevators, saving energy & save construction area.